Продам склад 288 м.кв.

Просмотров 1
39 528 000 руб.
Балашиха , город Балашиха, промышленно-логистический парк Лиханов Балашиха, д.1
Отдел продаж
Показать телефон
Данные актуальны на 01.04.2026
Пожаловаться на объявление
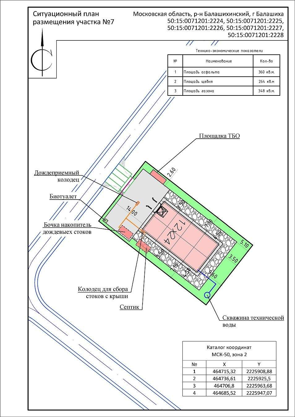
Новый производственно-складской комплекс 288 м2 (также доступны: 540 м2, 1008 м2, 1296 м2, 1440 м2) на участке 13,08 соток от ЗАСТРОЙЩИКА промышленно-логистического парка «Лиханов Балашиха», 19 км от МКАД. Потолки 6м, пол не менее 3,5т/м. Все сети, газ по границе. Идеально под производство и логистику! Цена уже с НДС. Площадь здания 288 м2. Площадь участка: 13,08 сотки (земля в собственности) . Линейные размеры здания: 12x24 м. Трехслойные сендвич-панели 1-го класса толщиной 120мм. Ж/б фундамент и каркас металлический. Утепленная цокольная балка. Нагрузки по нормативам 3го снегового района. Загрузка: ворота с доступом на «нулевом» уровне - удобно для заезда любой техники внутрь. Электричество 16 КВт. Газ - среднего давления по границе участка. Сталефибробетонный ровный пол, нагрузка не менее 3,5 тонн/кв. м (подходит для тяжелого оборудования и стеллажей) . Шаг колонн 6 метров по периметру здания. Внутри здания отсутствуют колонны или перегородки. 6 метров чистовая высота потолка (от пола до балки - максимум полезной площади) . Плоская неэксплуатируемая кровля с мембраной Thermofol U15 TM Bauder (пр-во Германия) или аналог. 1) Верхний теплоизоляционный материал толщиной 50 мм ТехноРУФ В ПРОФ или Rockwool Руф Баттс В Экстра (или аналог) - плотность не менее 180 кг/м3; 2) Нижний теплоизоляционный материал толщиной 100 мм ТехноРУФ Н ПРОФ или Rockwool Руф Баттс Н Оптима (или аналог) - плотность не менее 100 кг/м3. Инженерные сети подведены к зданию (водоснабжение, канализация ливневая и хозбытовая) . Установлены автоматическая пожарная сигнализация, система оповещения и управления эвакуацией и противопожарные ёмкости на внутренней территории парка. Готовность объекта: 3 квартал 2026 года _____________________________ О ПЛП «Лиханов Балашиха» Инфраструктура промышленно-логистического парка Участок полностью готов к эксплуатации: Проведены внутриплощадочные сети электроснабжения; Магистральный газ среднего давления по границе участка; Готовые заезды на каждый участок; Дороги: Внутрипарковые дороги из аэродромных плит «ПАГ-14» (нагрузка до 45 тонн) гарантируют долговечность и доступ большегрузов в любую погоду; Высокоскоростной интернет (оптоволокно) . _____________________________ Безопасность Территория парка (17,91 га) имеет закрытый периметр: КПП со шлагбаумами Круглосуточная охрана Система видеонаблюдения _____________________________ Стратегическая локация ПЛП «Лиханов Балашиха» расположен максимально удобно для логистики Восточного направления: 12 км до трассы М12 4,5 км до выезда на Носовихинское шоссе 19 км от МКАД 27 км от ЦКАД 17 км от метро «Некрасовка» В ближайшие 5 лет планируется строительство развязки с М12 «Москва-Казань» _____________________________ Окружение и Кадры Огромный плюс для работодателя: В радиусе доступности проживает 550 000 человек (80% с высшим образованием) .

Дополнительная информация

Тип здания Склад Вход - Ремонт - Интернет - Кондиционер - Вентиляция Есть Пожарная сигнализация Есть Ответственное хранение -
Грузовой лифт - Подъезд для фуры - Наличие пандуса - Наличие железной дороги - 3PL услуги - Электроэнергия - Высота потолков - Кран-балка -
Динамика изменения цен на рынке недвижимости ?

По городу Балашиха, в категории Складские помещения
За последние полгода средняя сумма за кв.м. выросла на 12867 руб. Колебание цен происходило от 84410 руб. до 97277 руб. На текущий момент наблюдается тенденция к росту цены.
Вход в личный кабинет